





96 103 ₽/м²
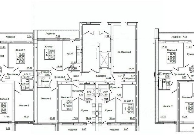
Арт. 95882553 Продается 2-х комнатная квартира в ЖК "Академия" Каркасно - монолитный дом , облицован кирпичом с автономным отоплением, ввод дома в эксплуатацию - 1 полугодие 2026 года, Вход в жилую часть дома расположены со стороны двора Кровля запроектирована с теплым чердаком и внутренним водостоком На кровле запроектирована крышная котельная из легкосборных конструкций Высота этажа в здании - 3м Окна и балконные двери из ПВХ профиля. Конструкция стен обладает высокой шумо и тепло изоляцией, что позволяет уменьшить теплопотери и снизить расходы на отопление Предусмотрена предчистовая отделка. Инфраструктура: Хорошее вложение ,как для покупки или дальнейшей аренды для студентов Мед.академии! Возможна покупка в рассрочку! Звоните!



122 603 ₽/м²
Все виды льгот, получите консультацию и гладкое сопровождение, обратившись к нам! ЖК "Академия" это 12/14-этажный жилой дом, расположенный в Промышленном районе г. Смоленска на ул. Крупской, в р-не Медгородка. Местоположение привлекает современной инфраструктурой, имеет пограничное положение с Ленинским р-ном, что делает возможность добираться до центров двух районов города без затруднений. В шаговой доступности есть все, что необходимо для комфортного проживания: ТЦ Европа и Макси, два детских сада "Звездный" (пр.Гагарина), "Машенька" (ул.М.Октябрьской), общеобразовательная школа 9 с тремя игровыми спортзалами, Школа олимпийского резерва 8, бассейн и ледовый дворец СГАФКСТ, Смоленская областная клиническая больница, стоянки для легковых автомобилей, клуб, гостиница и ресторан "Престиж", продовольственные и бытовые магазины, бассейн и Ледовый дворец), удобная транспортная развязка (5 минут до центра города), различные маршруты общественного транспорта. Современный комфортный дом расположен в тихом районе с развитой инфраструктурой, в шаговой доступности детский сад, магазины, тренажерный зал, рестораны, остановки общественного транспорта. Предусматривается благоустройство прилегающей территории. Сдача дома планируется в 1 кв. 2026 года, квартиры уже готовы! Не упустите возможность приобрести качественную квартиру в новостройке! Проектируемый многоквартирный жилой дом расположен в районе пересечения оживленных улиц, чем была обусловлена этажность и конфигурация здания. Для лучшей архитектурной выразительности угловая секция и примыкающие к ней запроектированы 14-ти этажными, последующие секции, примыкающие к ул. Крупской выполнены с понижением на один этаж 13-ти и 12-ти этажными соответственно. На угловой секции возвышается декоративная башня, остальные секции решены с различным завершением парапетов. Кровля запроектирована с теплым чердаком и внутренним водостоком. Высота этажа в здании 3 м. На жилых этажах расположены по четыре квартиры. Окна и балконные двери из ПВХ профиля. Конструкция стен обладает высокой шумо и теплоизоляцией, что позволяет уменьшить теплопотери и снизить расходы на отопление. Свободная от застройки и использования территория озеленяется, устройством газона с посевом многолетних трав. На газонах предусматривается посадка деревьев и кустарников, устройство цветников.






95 995 ₽/м²
Арт. 125985529 Продается 2-х комнатная квартира в каркасно-монолитном доме, обложенном кирпичом ул.Крупской д.60/2: дом с автономным отоплением кровля запроектирована с теплым чердаком и внутренним водостоком на кровле запроектирована крышная котельная из легко сборных конструкций окна и балконные двери из ПВХ профиля, лоджия застеклена окна квартиры выходят на 2 стороны (кухня и комната во двор, одна комната на улицу) конструкция стен обладает высокой тепло и шумоизоляцией, что позволит уменьшить тепло потери и снизить расходы на отопление предусмотрена пред чистовая отделка высота этажа в здании - 3 м Инфраструктура: рядом Мед.академия, 2 д/садика "Чайка" и "Машенька" школа 4,9,27 в шаговой доступности ТЦ "Европа","Империя", множество магазинов, как на первом этаже этого дома, так и в шаговой доступности остановка транспорта рядом с домом, поэтому уехать в любую точку города легко!, как на Киселевку, так и в центр города. Возможна покупка, ваше старое жилье в зачет, рассрочка платежей! Звоните!








112 432 ₽/м²
Отличная возможность приобрести современную 1-комнатную квартиру в новом ЖК "Академия" в Смоленске! Расположена по адресу: г. Смоленск, ул. Крупская, д. 60/2. Это комфортабельный 14-этажный каркасно-монолитный дом с автономным отоплением, где каждая деталь продумана для вашего удобства. Квартира идеально подойдет для одиноких, пары или инвесторов — живите с комфортом или сдавайте в аренду с выгодой! Ключевые преимущества комплекса и района: Современная отделка: Внутренняя отделка выполнена из качественных материалов, обеспечивающих повышенную шумо- и теплоизоляцию — тишина и уют в любое время года. Индивидуальное отопление: Устанавливайте комфортную температуру независимо от погоды, экономьте на коммуналках и наслаждайтесь теплом круглый год. Вид из окон: Отличный панорамный вид, особенно с верхних этажей — наслаждайтесь городскими пейзажами или зеленью района. Транспортная доступность: Удобная развязка с общественным транспортом (трамвай, маршрутки, автобусы) — быстро доберетесь в любую точку города. Парковка и инфраструктура: Большая парковка на территории, аптеки, кафе, магазины и фитнес-залы в шаговой доступности — все необходимое для комфортной жизни рядом с домом. Звоните прямо сейчас для просмотра, консультации и бронирования! Мы обеспечим прозрачную сделку и поможем с переездом.



114 967 ₽/м²
Продажа Квартира. Смоленск, Промышленный район, Крупской улица, дом 60/2 этажей 14, высота потолков 2.7 метров, Улучшенной пл., Монолит, 1 комнатная квартира, общая площадь 46.1 кв. м., планировка изолированная, состояние без отделки., санузел раздельный, окна ПВХ, железная входная дверь, пассажирский лифт, грузовой лифт, детская площадка, спортивная площадка, стеклопакеты, железная дверь.






115 676 ₽/м²
Все виды льгот, получите консультацию и гладкое сопровождение, обратившись к нам! ЖК "Академия" это 12/14-этажный жилой дом, расположенный в Промышленном районе г. Смоленска на ул. Крупской, в р-не Медгородка. Местоположение привлекает современной инфраструктурой, имеет пограничное положение с Ленинским р-ном, что делает возможность добираться до центров двух районов города без затруднений. В шаговой доступности есть все, что необходимо для комфортного проживания: ТЦ Европа и Макси, два детских сада "Звездный" (пр.Гагарина), "Машенька" (ул.М.Октябрьской), общеобразовательная школа 9 с тремя игровыми спортзалами, Школа олимпийского резерва 8, бассейн и ледовый дворец СГАФКСТ, Смоленская областная клиническая больница, стоянки для легковых автомобилей, клуб, гостиница и ресторан "Престиж", продовольственные и бытовые магазины, бассейн и Ледовый дворец), удобная транспортная развязка (5 минут до центра города), различные маршруты общественного транспорта. Современный комфортный дом расположен в тихом районе с развитой инфраструктурой, в шаговой доступности детский сад, магазины, тренажерный зал, рестораны, остановки общественного транспорта. Предусматривается благоустройство прилегающей территории. Сдача дома планируется в 1 кв. 2026 года, квартиры уже готовы! Не упустите возможность приобрести качественную квартиру в новостройке! Проектируемый многоквартирный жилой дом расположен в районе пересечения оживленных улиц, чем была обусловлена этажность и конфигурация здания. Для лучшей архитектурной выразительности угловая секция и примыкающие к ней запроектированы 14-ти этажными, последующие секции, примыкающие к ул. Крупской выполнены с понижением на один этаж 13-ти и 12-ти этажными соответственно. На угловой секции возвышается декоративная башня, остальные секции решены с различным завершением парапетов. Кровля запроектирована с теплым чердаком и внутренним водостоком. Высота этажа в здании 3 м. На жилых этажах расположены по четыре квартиры. Окна и балконные двери из ПВХ профиля. Конструкция стен обладает высокой шумо и теплоизоляцией, что позволяет уменьшить теплопотери и снизить расходы на отопление. Свободная от застройки и использования территория озеленяется, устройством газона с посевом многолетних трав. На газонах предусматривается посадка деревьев и кустарников, устройство цветников.









116 624 ₽/м²
Все виды льгот, получите консультацию и гладкое сопровождение, обратившись к нам! ЖК "Академия" это 12/14-этажный жилой дом, расположенный в Промышленном районе г. Смоленска на ул. Крупской, в р-не Медгородка. Местоположение привлекает современной инфраструктурой, имеет пограничное положение с Ленинским р-ном, что делает возможность добираться до центров двух районов города без затруднений. В шаговой доступности есть все, что необходимо для комфортного проживания: ТЦ Европа и Макси, два детских сада "Звездный" (пр.Гагарина), "Машенька" (ул.М.Октябрьской), общеобразовательная школа 9 с тремя игровыми спортзалами, Школа олимпийского резерва 8, бассейн и ледовый дворец СГАФКСТ, Смоленская областная клиническая больница, стоянки для легковых автомобилей, клуб, гостиница и ресторан "Престиж", продовольственные и бытовые магазины, бассейн и Ледовый дворец), удобная транспортная развязка (5 минут до центра города), различные маршруты общественного транспорта. Современный комфортный дом расположен в тихом районе с развитой инфраструктурой, в шаговой доступности детский сад, магазины, тренажерный зал, рестораны, остановки общественного транспорта. Предусматривается благоустройство прилегающей территории. Сдача дома планируется в 1 кв. 2026 года, квартиры уже готовы! Не упустите возможность приобрести качественную квартиру в новостройке! Проектируемый многоквартирный жилой дом расположен в районе пересечения оживленных улиц, чем была обусловлена этажность и конфигурация здания. Для лучшей архитектурной выразительности угловая секция и примыкающие к ней запроектированы 14-ти этажными, последующие секции, примыкающие к ул. Крупской выполнены с понижением на один этаж 13-ти и 12-ти этажными соответственно. На угловой секции возвышается декоративная башня, остальные секции решены с различным завершением парапетов. Кровля запроектирована с теплым чердаком и внутренним водостоком. Высота этажа в здании 3 м. На жилых этажах расположены по четыре квартиры. Окна и балконные двери из ПВХ профиля. Конструкция стен обладает высокой шумо и теплоизоляцией, что позволяет уменьшить теплопотери и снизить расходы на отопление. Свободная от застройки и использования территория озеленяется, устройством газона с посевом многолетних трав. На газонах предусматривается посадка деревьев и кустарников, устройство цветников.








122 123 ₽/м²
Все виды льгот, получите консультацию и гладкое сопровождение, обратившись к нам! ЖК "Академия" это 12/14-этажный жилой дом, расположенный в Промышленном районе г. Смоленска на ул. Крупской, в р-не Медгородка. Местоположение привлекает современной инфраструктурой, имеет пограничное положение с Ленинским р-ном, что делает возможность добираться до центров двух районов города без затруднений. В шаговой доступности есть все, что необходимо для комфортного проживания: ТЦ Европа и Макси, два детских сада "Звездный" (пр.Гагарина), "Машенька" (ул.М.Октябрьской), общеобразовательная школа 9 с тремя игровыми спортзалами, Школа олимпийского резерва 8, бассейн и ледовый дворец СГАФКСТ, Смоленская областная клиническая больница, стоянки для легковых автомобилей, клуб, гостиница и ресторан "Престиж", продовольственные и бытовые магазины, бассейн и Ледовый дворец), удобная транспортная развязка (5 минут до центра города), различные маршруты общественного транспорта. Современный комфортный дом расположен в тихом районе с развитой инфраструктурой, в шаговой доступности детский сад, магазины, тренажерный зал, рестораны, остановки общественного транспорта. Предусматривается благоустройство прилегающей территории. Сдача дома планируется в 1 кв. 2026 года, квартиры уже готовы! Не упустите возможность приобрести качественную квартиру в новостройке! Проектируемый многоквартирный жилой дом расположен в районе пересечения оживленных улиц, чем была обусловлена этажность и конфигурация здания. Для лучшей архитектурной выразительности угловая секция и примыкающие к ней запроектированы 14-ти этажными, последующие секции, примыкающие к ул. Крупской выполнены с понижением на один этаж 13-ти и 12-ти этажными соответственно. На угловой секции возвышается декоративная башня, остальные секции решены с различным завершением парапетов. Кровля запроектирована с теплым чердаком и внутренним водостоком. Высота этажа в здании 3 м. На жилых этажах расположены по четыре квартиры. Окна и балконные двери из ПВХ профиля. Конструкция стен обладает высокой шумо и теплоизоляцией, что позволяет уменьшить теплопотери и снизить расходы на отопление. Свободная от застройки и использования территория озеленяется, устройством газона с посевом многолетних трав. На газонах предусматривается посадка деревьев и кустарников, устройство цветников.









123 077 ₽/м²
Все виды льгот, получите консультацию и гладкое сопровождение, обратившись к нам! ЖК "Академия" это 12/14-этажный жилой дом, расположенный в Промышленном районе г. Смоленска на ул. Крупской, в р-не Медгородка. Местоположение привлекает современной инфраструктурой, имеет пограничное положение с Ленинским р-ном, что делает возможность добираться до центров двух районов города без затруднений. В шаговой доступности есть все, что необходимо для комфортного проживания: ТЦ Европа и Макси, два детских сада "Звездный" (пр.Гагарина), "Машенька" (ул.М.Октябрьской), общеобразовательная школа 9 с тремя игровыми спортзалами, Школа олимпийского резерва 8, бассейн и ледовый дворец СГАФКСТ, Смоленская областная клиническая больница, стоянки для легковых автомобилей, клуб, гостиница и ресторан "Престиж", продовольственные и бытовые магазины, бассейн и Ледовый дворец), удобная транспортная развязка (5 минут до центра города), различные маршруты общественного транспорта. Современный комфортный дом расположен в тихом районе с развитой инфраструктурой, в шаговой доступности детский сад, магазины, тренажерный зал, рестораны, остановки общественного транспорта. Предусматривается благоустройство прилегающей территории. Сдача дома планируется в 1 кв. 2026 года, квартиры уже готовы! Не упустите возможность приобрести качественную квартиру в новостройке! Проектируемый многоквартирный жилой дом расположен в районе пересечения оживленных улиц, чем была обусловлена этажность и конфигурация здания. Для лучшей архитектурной выразительности угловая секция и примыкающие к ней запроектированы 14-ти этажными, последующие секции, примыкающие к ул. Крупской выполнены с понижением на один этаж 13-ти и 12-ти этажными соответственно. На угловой секции возвышается декоративная башня, остальные секции решены с различным завершением парапетов. Кровля запроектирована с теплым чердаком и внутренним водостоком. Высота этажа в здании 3 м. На жилых этажах расположены по четыре квартиры. Окна и балконные двери из ПВХ профиля. Конструкция стен обладает высокой шумо и теплоизоляцией, что позволяет уменьшить теплопотери и снизить расходы на отопление. Свободная от застройки и использования территория озеленяется, устройством газона с посевом многолетних трав. На газонах предусматривается посадка деревьев и кустарников, устройство цветников.









121 081 ₽/м²
Все виды льгот, получите консультацию и гладкое сопровождение, обратившись к нам! ЖК "Академия" это 12/14-этажный жилой дом, расположенный в Промышленном районе г. Смоленска на ул. Крупской, в р-не Медгородка. Местоположение привлекает современной инфраструктурой, имеет пограничное положение с Ленинским р-ном, что делает возможность добираться до центров двух районов города без затруднений. В шаговой доступности есть все, что необходимо для комфортного проживания: ТЦ Европа и Макси, два детских сада "Звездный" (пр.Гагарина), "Машенька" (ул.М.Октябрьской), общеобразовательная школа 9 с тремя игровыми спортзалами, Школа олимпийского резерва 8, бассейн и ледовый дворец СГАФКСТ, Смоленская областная клиническая больница, стоянки для легковых автомобилей, клуб, гостиница и ресторан "Престиж", продовольственные и бытовые магазины, бассейн и Ледовый дворец), удобная транспортная развязка (5 минут до центра города), различные маршруты общественного транспорта. Современный комфортный дом расположен в тихом районе с развитой инфраструктурой, в шаговой доступности детский сад, магазины, тренажерный зал, рестораны, остановки общественного транспорта. Предусматривается благоустройство прилегающей территории. Сдача дома планируется в 1 кв. 2026 года, квартиры уже готовы! Не упустите возможность приобрести качественную квартиру в новостройке! Проектируемый многоквартирный жилой дом расположен в районе пересечения оживленных улиц, чем была обусловлена этажность и конфигурация здания. Для лучшей архитектурной выразительности угловая секция и примыкающие к ней запроектированы 14-ти этажными, последующие секции, примыкающие к ул. Крупской выполнены с понижением на один этаж 13-ти и 12-ти этажными соответственно. На угловой секции возвышается декоративная башня, остальные секции решены с различным завершением парапетов. Кровля запроектирована с теплым чердаком и внутренним водостоком. Высота этажа в здании 3 м. На жилых этажах расположены по четыре квартиры. Окна и балконные двери из ПВХ профиля. Конструкция стен обладает высокой шумо и теплоизоляцией, что позволяет уменьшить теплопотери и снизить расходы на отопление. Свободная от застройки и использования территория озеленяется, устройством газона с посевом многолетних трав. На газонах предусматривается посадка деревьев и кустарников, устройство цветников.















| 🔷 Средняя цена продажи: | 7,9 млн ₽ |
| 🔷 Средняя цена за м2: | 122,1 тыс. ₽/м² |
| 🔷 Минимальная стоимость: | 5,1 млн ₽ |
| 🔷 Самый дорогой объект: | 11,7 млн ₽ |