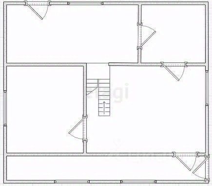
Продается 2-этажный кирпичный дом 215 м² на участке 25.2 сотки в д. Кощино, Смоленский р-н. Все центральные коммуникации, развитая инфраструктура. Описание объекта: Предлагаем вашему вниманию капитальный двухэтажный дом общей площадью 215 кв.м, расположенный на ухоженном земельном участке площадью 25.2 сотки в живописной деревне Кощино, Смоленский район, Смоленская область. Ключевые характеристики: 1. Дом: - Конструкция: Два полноценных этажа, выполненные из качественного бруса с кирпичной облицовкой для долговечности и эстетического вида. - Перекрытия: Надежные плиты перекрытия на первом этаже. - Подвальное помещение: Просторный, сухой подвал, идеально подходящий для хранения, мастерской или котельной. -Коммуникации: - Газ: магистральный - Электричество: централизованное - Водоснабжение: центральное - Канализация: современный септик 2. Земельный участок (25.2 сотки): - Ровный рельеф, ухоженное состояние, огорожен. -Инфраструктура участка: - Гараж для надежного хранения автомобиля - Баня для отдыха и релаксации - Хозяйственная постройка для инвентаря - Теплица для выращивания овощей и растений - Плодово-ягодные насаждения для приятного времяпрепровождения 3. Локация и инфраструктура: - Деревня Кощино предлагает развитую социальную и бытовую инфраструктуру: - Магазины, включая сетевые, и пункты выдачи Ozon, Wildberries - Амбулатория и аптека - Школа и детский сад - Дом культуры с кружками и секциями для детей - Спортивные и детские игровые площадки - Остановка общественного транспорта с регулярными рейсами в Смоленск Преимущества: Готовность к проживанию: Все необходимые современные коммуникации уже подключены. Простор и комфорт: Значительная жилая площадь, полезный подвал, гараж и дополнительные строения на участке. Качество строительства: Комбинированная конструкция (брус и кирпич) обеспечивает надежность и долговечность. Уникальная инфраструктура: Комфортная загородная жизнь с доступом к социальным объектам и транспортным маршрутам. Ухоженная территория: Благоустроенный участок с садом и теплицей идеальное место для отдыха и ведения хозяйства. Для серьезных покупателей обоснованный торг. - Объект подходит как для постоянного проживания, так и для загородного отдыха. - Документы готовы к проверке. - Мы приглашаем вас на просмотр в удобное для вас время. Не упустите возможность стать владельцем этого замечательного дома в уютном уголке природы! Звоните!










































































