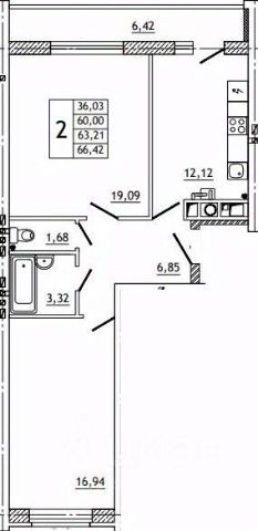
Продаётся 2-комнатная квартира в строящемся доме (дом 26), срок сдачи: I-кв. 2029, общей площадью 65.5 кв.м., на 7 этаже. Расположение, транспортная доступность
ЖК "мкр. Алтуховка" - многоквартирный жилой комплекс, построенный в Промышленном районе Смоленска, по ул. Светлая, ул. Дружбы и ул. 70 лет Победы, недалеко от леса, в двух километрах от озера Дачное. В 640 метрах от комплекса находится остановка троллейбусов 3 и 4, а также нескольких автобусных маршрутов.
До вокзала Смоленск можно добраться на автобусе 25 за сорок минут (до него 11 километров). В 4,2 километрах расположена развязка крупных городских дорог - ул. Крупской, Рославльского шоссе и просп. Строителей, а в 2,5 километрах - перекресток просп. Строителей и ул. Рыленкова. До автовокзала (10 километров) можно доехать, если пересечь реку Днепр по мосту ул. Беляева.
Инфраструктура
Ближайшие к ЖК "мкр. Алтуховка" супермаркеты, продуктовые магазины "Магнит" и "Маргарита" открыты в 800-900 метрах, по ул. Рыленкова. Чуть дальше - в 1,5-2 километрах - супермаркет "Пятерочка", магазин продуктов "Рита", ТЦ "XXI век", Киселевский продуктовый рынок. Детский сад 64 "Солнечный зайчик" расположен в 1,1 километре от комплекса. Средняя школа 37 - в 1,5 километрах, общеобразовательная школа 35 - в 2,3 километрах. На просп. Строителей, 15 находится поликлиника для взрослых 2 (до нее от дома 2,8 километров).
Ближайший кинотеатр "Мираж Синема" расположен в 3,8 км. Он находится в крупном торгово-развлекательном центре "Макси", где работает большое количество магазинов и бутиков (магазин обуви Kari, магазин одежды Familia, магазин бытовой техники и электроники "М.Видео", магазин парфюмерии и косметики "Рив Гош" и др.), а также кафе и ресторанов. Для любителей спортивного образа жизни в 2,8 км открыт СК "Новое поколение", а в 3,3 км - спортивный комплекс и каток "Ледовый дворец".
Надежность застройщика
Застройщиком ЖК "мкр. Алтуховка" выступает АО "Смолстром-Сервис", присутствующее на строительном рынке города с 1997 г. Компания является заказчиком, застройщиком и генподрядчиком, возводит жилые и нежилые здания, занимается архитектурными разработками, оказывает посреднические услуги при купле-продаже недвижимости.
Разрешения на строительство домов получены в 2013-м, 2014-м и 2015 году.
В комплексе построено пять корпусов, которые сданы в 2015-м, 2017-м и в первом квартале 2018 года. Сдача еще одного корпуса запланирована на третий квартал 2020 года.
Архитектура
ЖК "мкр. Алтуховка" состоит из шести десятиэтажных кирпичных жилых домов эконом-класса. Стены выполнены из ячеистых блоков и керамического кирпича, заполнены плитами-утеплителем и облицованы силикатным кирпичом белого, бежевого, темно-желтого и кирпично-красного цветов, толщина стен 680 мм.
Площади квартир в зданиях: от 40,55 кв. м (однокомнатные), от 61,6 кв. м (двухкомнатные), от 94 кв. м (трехкомнатные).
Количество квартир в новостройке:
дом 2 - шестисекционный на 249 квартир;дом 6 - шестисекционный на 236 квартир (113 однок