Мы используем куки-файлы. Соглашение об использовании
С мебелью

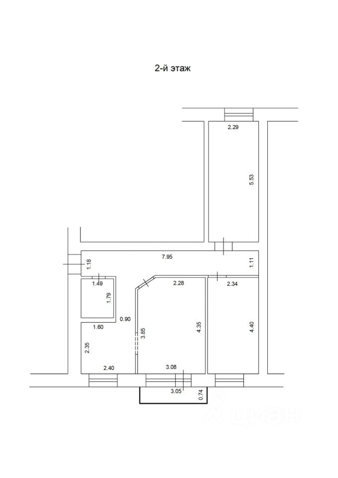
Продается 3-комн. квартира, 64 м²

Общая площадь64 м²
Площадь кухни6 м²
Этаж2 из 4
Год постройки1963
Продается 3-комнатная квартира в центре Смоленска. две изолированные спальни, кухня совмещена с гостиной. Соседи хорошие. Состояние жилое, требует местами ремонта. Главный плюс - индивидуальное отопление (экономия на коммунальных платежах). Во дворе детский сад, рядом 26 школа, Камерный театр, магазины, рестораны. Хорошая транспортная развязка.
Позвоните автору
Вам ответят на все вопросы

О квартире

Тип жилья

Вторичка

Общая площадь

64 м²

Площадь кухни

6 м²

Высота потолков

2,5 м

Санузел

1 совмещенный

Балкон/лоджия

1 балкон

Вид из окон

Во двор

Перепланировка

Была

Продаётся с мебелью

Да

О доме

Год постройки

1963

Тип дома

Кирпичный

Тип перекрытий

Железобетонные

Подъезды

4

Отопление

Центральное

Аварийность

Нет

Газоснабжение

Центральное

Юридические особенности

Несовершеннолетние собственники

Нет

Материнский капитал при покупке

Не использовался

Доступная среда

Входная дверь не указана
Двери в ванную и санузел не указаны
Двери в комнаты и кухню не указаны
Спросите умного помощника
Получите экспертное мнение о жилье

Расположение

Ипотечный калькулятор
  • Базовая
  • Семейная
  • ИТ-ипотека
  • 20%
  • 30%
  • 40%
  • 50%
лет
  • 10 лет
  • 20 лет
  • 30 лет
Загружаем предложения от застройщика и банков
Помощь риелтора
Проверенный риелтор поможет купить или продать квартиру
Автор объявленияВиктория Буря
  • 13 лет 8 месяцев на Циане
  • 1 объявление
  • 5 000 000 ₽
    Цена за метр
    78 125 ₽/м²
    Условия сделки
    свободная продажа
    Ипотека
    возможна
    Автор объявленияВиктория Буря