Мы используем куки-файлы. Соглашение об использовании

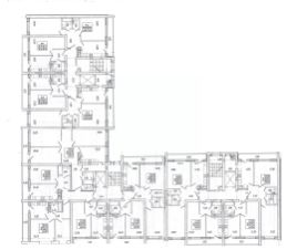
Продается 2-комн. квартира, 69,7 м²

Общая площадь69,7 м²
Жилая площадь34,1 м²
Площадь кухни12,1 м²
Этаж4 из 10
Год сдачи2024
ДомСдан
ОтделкаБез отделки
Квартира 13 в кирпичном доме от надежного застройщика

О квартире

Тип жилья

Новостройка

Общая площадь

69,7 м²

Жилая площадь

34,1 м²

Площадь кухни

12,1 м²

Высота потолков

2,5 м

Санузел

1 раздельный

Вид из окон

Во двор

Отделка

Без отделки

О доме

Тип дома

Кирпичный

Пандус

Есть

Понравилась квартира — узнайте о ней больше

Застройщик ответит на все вопросы

Отделка в ЖК

  • Чистовая
  • Без отделки

3D-тур

Посмотрите 3D-тур, чтобы оценить объект
Похоже на то, что вы ищете?

Акции в ЖК «по ул. Нахимова»

Узнайте про персональные условия и дополнительные скидки при покупке квартиры у застройщика

Материнский капитал

Ипотечный калькулятор
  • Базовая
  • Семейная
  • ИТ-ипотека
  • 20%
  • 30%
  • 40%
  • 50%
лет
  • 10 лет
  • 20 лет
  • 30 лет
Загружаем предложения от застройщика и банков

Расположение

Корпус проверен наш.дом.рф
Обновлено 23 февраля 2025
  • Нет в реестре проблемных объектов
  • Застройщик не банкрот

Ещё квартиры в жилом комплексе

39 квартир в продаже · Сдан
ЗастройщикСмолстром-Сервис
Год основания: 1992
Строится: 9 домов в 4 ЖК
8 016 000 ₽
Цена за метр
115 007 ₽/м²
Условия сделки
свободная продажа