Мы используем куки-файлы. Соглашение об использовании

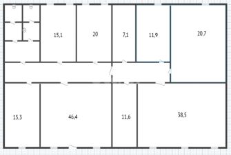
Продается торговая площадь, 231,9 м²

Площадь231,9 м²
Этаж-1 из 3
Продается коммерческое помещение площадью свыше 230 кв.м., расположенное на ул. Ленина, в историческом центре Смоленка, недалеко от Авраамиевского монастыря. В настоящее время часть помещения арендует ПВЗ OZON. Возле дома имеется большое количество свободных парковочных мест. ИМЕЕТСЯ ВОЗМОЖНОСТЬ РАЗДЕЛИТЬ помещения на две части с оборудованием второго выхода и дополнительного сан/узла! Преимуществом данного варианта будет являться наличие в каждой из половин одного БОЛЬШОГО помещения (клиентская зона) и нескольких комнат, которые можно использовать как склад/архив и кабинеты. В самом помещении в настоящее время находятся два сан/узла, один из которых с душем. Звоните - ответим на интересующие Вас вопросы, покажем помещение! Код пользователя: 181388 Номер в базе: 12061870
lock

Войдите или зарегистрируйтесь
для просмотра информации

Просматривайте условия сделки и всю информацию об объекте
Сохраняйте фильтры в поиске и не вводите заново
Доступ к избранному с любого устройства
Неограниченное добавление в избранное
Позвоните автору
Вам ответят на все вопросы
Остались вопросы по объявлению?
Позвоните владельцу объявления и уточните необходимую информацию.
  • Инфраструктура
  • Похожие рядом
  • Общая площадь231,9 м²
Помощь надёжных риелторов
Риелтор партнёр Циан поможет купить или продать любую недвижимость
12 580 000 ₽
173 878 $
149 630
Цена за метр
54 248 ₽
Налог
НДС включен: 2 268 524 ₽
Агентство недвижимости
Документы проверены
На Циан
12 лет
Объектов в работе
более 1000