Мы используем куки-файлы. Соглашение об использовании
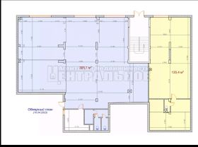
Помещение свободного назначения, 320 м²

Сдается помещение свободного назначения, 320 м²

Площадь320 м²
Этаж1 из 10
Сдаётся коммерческое помещение свободного назначения на ПЕРВОЙ ЛИНИИ ! Отличное расположение Активный траффик Комфортный подъезд Много парковочных мест Помещение площадью 305 м2, 2 санузла, душевая, мощность 40 кВт Свободная планировка Высокие потолки, панорамное остекление Современный ремонт из высококачественных материалов, не требуется дополнительных вложений ИНДИВИДУАЛЬНОЕ отопление, низкие коммунальные платежи Пожарная сигнализация Предусмотрены каникулы на оснащение помещения Рассматривается продажа всего помещения 2 этаж так же рассматриваем под аренду 450 кв м + Показ в удобное для Вас время! Звоните, все подробности по телефону. Арт. 114178420
lock

Войдите или зарегистрируйтесь
для просмотра информации

Просматривайте условия сделки и всю информацию об объекте
Сохраняйте фильтры в поиске и не вводите заново
Доступ к избранному с любого устройства
Неограниченное добавление в избранное
Позвоните автору
Вам ответят на все вопросы
Остались вопросы по объявлению?
Позвоните владельцу объявления и уточните необходимую информацию.
  • Инфраструктура
  • Похожие рядом
  • Общая площадь320 м²
Автономное отопление
Помощь надёжных риелторов
Риелтор партнёр Циан поможет купить или продать любую недвижимость
Документы проверены
320 000 ₽/мес.

Прямая аренда (от года), доступны арендные каникулы, обеспечительный платёж 320000 ₽, предоплата за 1 месяц

4 284 $/мес.
3 653 /мес.
Цена за метр
12 000 ₽ в год
Налог
НДС не включен
Комиссия
31%
Коммунальные платежи
не включены
Эксплуатационные расходы
не включены
Агентство недвижимости
Документы проверены
На Циан
3 года
Объектов в работе
492