Мы используем куки-файлы. Соглашение об использовании
Помещение свободного назначения, 334,5 м²
Обновлено: 16 апр, 18:39
В объявлениях этого агента встречаются ошибки
Объект может отличаться от предложенного в объявлении. Уточняйте параметры объекта до просмотра. Оставьте жалобу, если обнаружите ошибку. Подробнее
Аукцион

Сдается помещение свободного назначения, 334,5 м²

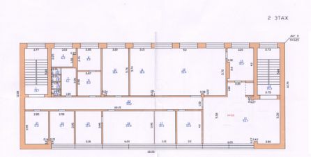
Площадь334,5 м²
Этаж1 из 2
ПомещениеСвободно
АО "ЖТК" предлагает в аренду нежилое помещение (помещение магазина 10), общей площадью 334,5 кв.м, с кадастровым номером 67:15:0321131:63, расположенное на земельном участке площадью 926,0 кв.м., кадастровый номер 67:15:0321131:1, по адресу: Смоленская обл., г. Рославль, ул. Наташи Зайцевой, д.1А. Помещение расположено на 2 этаже с отдельным входом с улицы, планирвока кабинетная. Состояние объекта: требуется ремонт помещений (арендные каникулы обсуждаются). Коммуникации: требуется повторное подключение электроснабжения, водоснабжения, водоотведения, отопления. Помещения свободного назначения (в том числе торговое, общепит, оказание услуг населению). Заключение договора аренды осуществляется по результатам открытого аукциона в электронной форме. Размер обеспечительного платежа составляет 8447,46 (с учетом НДС). Дата проведения аукциона: 24.04.2026 в 10:00 часов. Дата окончания приема заявок: 21.04.2026 в 23:59 часов. Место и форма проведения аукциона: электронная торговая площадка "РТС-Тендер". Номер процедуры на сайте РТС-Тендер: 215516. Стоимость услуг электронной торговой площадки в соответствии с условиями электронной торговой площадки РТС-Тендер 1900,00 руб., с учетом НДС.
АукционОбъект реализуется посредством электронных торгов. Конечную информацию об оплате, дополнительных платежах и условия заключения договора смотрите в документах извещения к лоту, на сайте электронной торговой площадки.
lock

Войдите или зарегистрируйтесь
для просмотра информации

Просматривайте условия сделки и всю информацию об объекте
Сохраняйте фильтры в поиске и не вводите заново
Доступ к избранному с любого устройства
Неограниченное добавление в избранное
  • Инфраструктура
  • Похожие рядом
  • Общая площадь334,5 м²
Помощь надёжных риелторов
Риелтор партнёр Циан поможет купить или продать любую недвижимость
Начальная цена, аукцион
84 474 ₽/мес.

Прямая аренда (от года), минимальный срок аренды 11 месяцев, предоплата за 1 месяц

1 111 $/мес.
943 /мес.
Цена за метр
3 031 ₽ в год
Налог
НДС включен: 15 233 ₽
Комиссия
нет
Коммунальные платежи
не включены
Эксплуатационные расходы
не включены
Агентство недвижимости
Документы проверены